Weinböhla: Reihenendhaus mit schönem Grundstück in ruhiger Wohnlage
-
Bei dem zum Verkauf stehenden Objekt handelt es sich um ein gepflegtes Reihenendhaus (REH) aus dem Baujahr 2001. Es befindet sich in einer ruhigen Anliegerstraße in einem kleinen, sehr ruhigen Wohngebiet. Das REH wurde auf einem 269 m² großem Grundstück erbaut.
An dieses Grundstück schließt sich unmittelbar ein 488 m² großer wunderschön angelegter und nicht einsehbarer Garten, welcher als Bauland nutzbar ist, an. Dieses Baugrundstück wird zu einem Preis von 100.000 Euro mitverkauft (rd. 200 Euro/qm).
Auf diesem Grundstück befindet sich ein Doppelcarport als Stellplatz für zwei PKWs. Die Gesamtfläche des zu verkaufenden Reihenendhauses zzgl. Grundstückes beträgt 757 m².
Das REH befindet sich in einem gepflegten Zustand und verfügt über eine gute Bausubstanz. Es eignet sich hervorragend als „Zuhause“ für einen 4-Personen-Haushalt. Hier können Sie ohne großen Aufwand direkt einziehen. -
Flächen
- Wohnfläche: 120 m²
- Grundstücksfläche: 757 m²
- Gartenfläche: 50 m²
- Zimmer insgesamt: 5
- Schlafzimmer: 1
- Badezimmer: 1
- Etagen: 2
- Stellplätze: 2
- Stellplatzart: Carport
- Carport-Stellplätze: 2
- Balkone: 1
- Balkon-/Terrassenfläche: 10 m²
Zustand & Erschließung
- Baujahr: 2001
- Zustand: gepflegt
- Keller: voll unterkellert
Sonstiges
Alle Angaben nach bestem Wissen. Irrtum und Zwischenverkauf vorbehalten.- Immobilie ist verfügbar ab: nach Vereinbarung
-
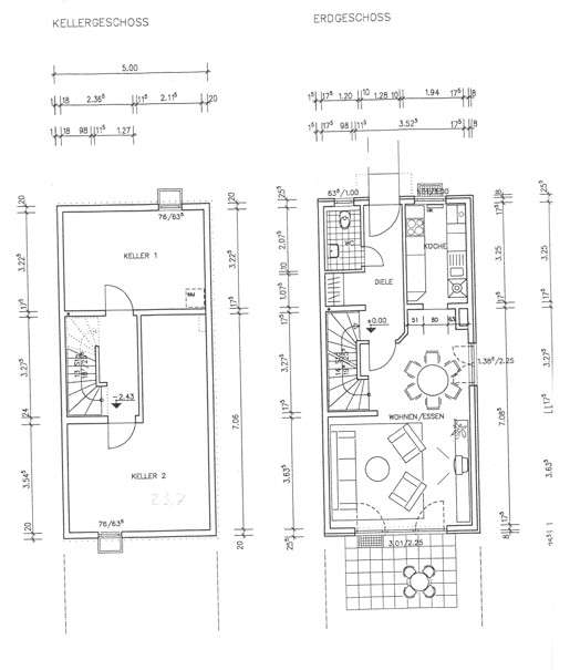
Das REH erstreckt sich über EG, OG und DG. Es ist vollständig unterkellert.
Im EG gelangt man über die Diele mit einem Gäste-WC in die Küche (vorhandene Einbauküche ist im Preis enthalten) und das Wohnzimmer mit angrenzenden zwei Terrassen, einer überdachten Terrasse an der seitlichen Hausfront und einer südlich ausgerichteten Sonnenterrasse mit kleinem Vorgarten an der hinteren Hausfront.
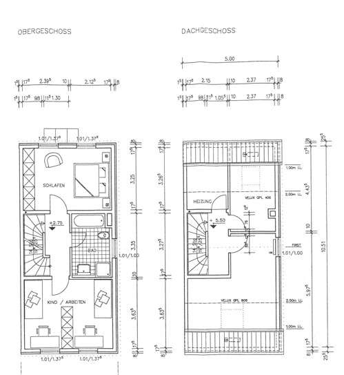
Im OG befindet sich das Schlafzimmer, ein Kinder-/Arbeitszimmer sowie das Tageslicht-Badezimmer mit Dusche und Badewanne.
Im Dachgeschoß befinden sich zwei weitere Kinder-/Arbeitszimmer sowie eine kleine Abstellkammer, in der die Heizungstherme untergebracht ist. Da die beiden Zimmer nur durch Trockenbauwände abgetrennt sind, könnte man diese beiden Zimmer auch wieder zu einem großen Zimmer zusammenlegen.
Im Keller befindet sich ein Hobbyraum mit Fenster sowie ein Vorratskeller.- Art der Ausstattung: Standard
- Heizungsart: Zentralheizung
- Befeuerung: Gas
- Badausstattung: Dusche, Badewanne, Fenster
- Küche: Einbauküche
-
- Energieausweis-Art: Verbrauch
- Energieausweis gültig bis: 31.01.2026
- Energieverbrauchskennwert: 130,60 kWh/(m²*a)
- Warmwasser im Energieverbrauch enthalten: ja
- Primärenergieträger: Gas
- Energieeffizienzklasse: D
- Energieausweis-Ausstellungsdatum: 22.05.0013
- Energieausweis-Jahrgang: ab Mai 2014
- Energieausweis-Gebäudeart: Wohngebäude
-
Entdecken Sie Ihr neues Zuhause in der charmanten Gemeinde Weinböhla, einer idyllischen Ortschaft im Landkreis Meißen, nur wenige Kilometer von der historischen Stadt Dresden entfernt. Diese Immobilie befindet sich in einer ruhigen Wohngegend, die sowohl Naturliebhaber als auch Stadtmenschen anspricht.
– Weinböhla bietet eine hervorragende Infrastruktur mit einer Vielzahl von Einkaufsmöglichkeiten, Restaurants und Cafés. Alles, was Sie für den täglichen Bedarf benötigen, ist bequem zu Fuß oder mit dem Fahrrad erreichbar.
– Die Anbindung an das öffentliche Verkehrsnetz ist hervorragend. Der S-Bahnhof Weinböhla liegt nur einen kurzen Spaziergang entfernt und bietet eine direkte Verbindung nach Dresden, sodass Sie die Vorteile des städtischen Lebens genießen können, ohne auf die Ruhe und den Frieden einer ländlichen Umgebung verzichten zu müssen.
– Für Autofahrer ist die Lage ebenso ideal. Die Autobahn A4 ist nur wenige Minuten entfernt, was eine schnelle und unkomplizierte Anreise zu anderen Städten und Regionen ermöglicht.
– Die Umgebung von Weinböhla ist geprägt von grünen Wiesen, Wäldern und Weinbergen. Genießen Sie ausgedehnte Spaziergänge, Fahrradtouren oder entspannen Sie in einem der nahegelegenen Weingüter.
– Familien werden die exzellenten Schulen und Kinderbetreuungseinrichtungen in der Nähe zu schätzen wissen. Zudem gibt es zahlreiche Parks und Spielplätze, die ideale Orte für Kinder zum Spielen und Erholen sind.
– Weinböhla ist bekannt für seine Weinkultur. Besuchen Sie eines der lokalen Weingüter, um die regionalen Spezialitäten zu probieren und mehr über den Weinanbau in der Region zu erfahren.Diese Immobilie in Weinböhla bietet nicht nur ein komfortables Zuhause, sondern auch eine hervorragende Lage mit allen Annehmlichkeiten, die Sie sich wünschen.
- Distanz zum Flughafen: 18,2 km
- Distanz zum Fernbahnhof: 1,0 km
- Distanz zur Autobahn: 10,0 km
- Distanz zu Bushaltestelle: 0,2 km
-
- Kaufpreis: 530.000 €
- Käuferprovision: 3,57%
- Hinweis zur Courtage: Der Käufer zahlt im Erfolgsfall an die Firma Beck & Holz Immobilien GmbH eine Käufer-Maklerprovision in Höhe von 3,57 % inkl. 19% MwSt.. Die Provision errechnet sich aus dem beurkundeten Kaufpreis. Dieses Exposé ist eine Vorinformation, als Rechtsgrundlage gilt allein der notariell abgeschlossene Kaufvertrag.
Grundrisse






































