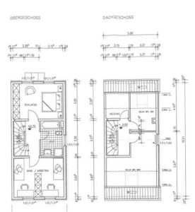
Grundriss OG und DG Von |2026-01-13T13:46:12+01:00Januar 13th, 2026|Kommentare deaktiviert für Grundriss OG und DG Share This Story, Choose Your Platform! FacebookXRedditLinkedInWhatsAppTumblrPinterestVkE-Mail Über den Autor: